Sanitairgebouwen Puur Campings Staatsbosbeheer
Opdrachtgever
Staatsbosbeheer | IDEAL&CO
Functie
Recreatie
Status
Ontwerp
Plaats
Puur campings op diverse locaties
Projectteam
ir. Jasper Felsch | Thies Timmermans | Ingrid de Pauw
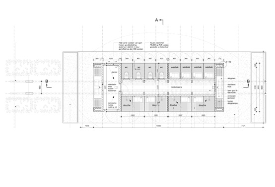
Voor Staatsbosbeheer zijn in samenwerking met IDEAL & CO voor de Puur Campings duurzame sanitairhuisjes ontworpen. Voor de ruim 30 campings van Staatsbosbeheer in de categorie ‘Puur kamperen’ was de opdracht om een duurzaam en herkenbaar sanitairgebouw te ontwikkelen, dat past bij de uitstraling en natuurbeleving van de bezoekers van deze kampeerterreinen. Het gebouw is ontworpen al houten blokje dat door een gestileerd houten blad droog gehouden wordt. Het water wordt verwarmd door zonneboilers, electra voor de energiezuinige verlichting wordt door zonnepanelen opgewekt.
Lees meer

De combinatie van een duurzaam productontwerper met een duurzame architect was voor deze opdracht zeer geslaagd. Ieder kan zijn specifieke expertise en werkwijze inbrengen.



