WWZ Klooster Utrecht
Opdrachtgever
WWZ groep Utrecht
Functie
Wonen | levensloopbestendig
Status
Studie
Plaats 
Utrecht
Projectteam
ir. Leon Broeren | ir. Jasper Felsch
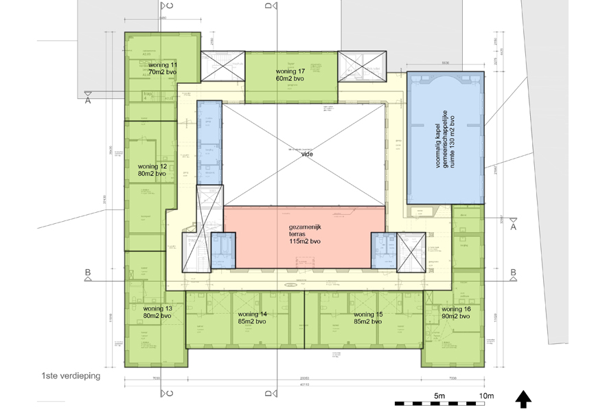
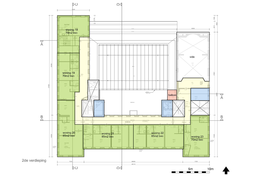
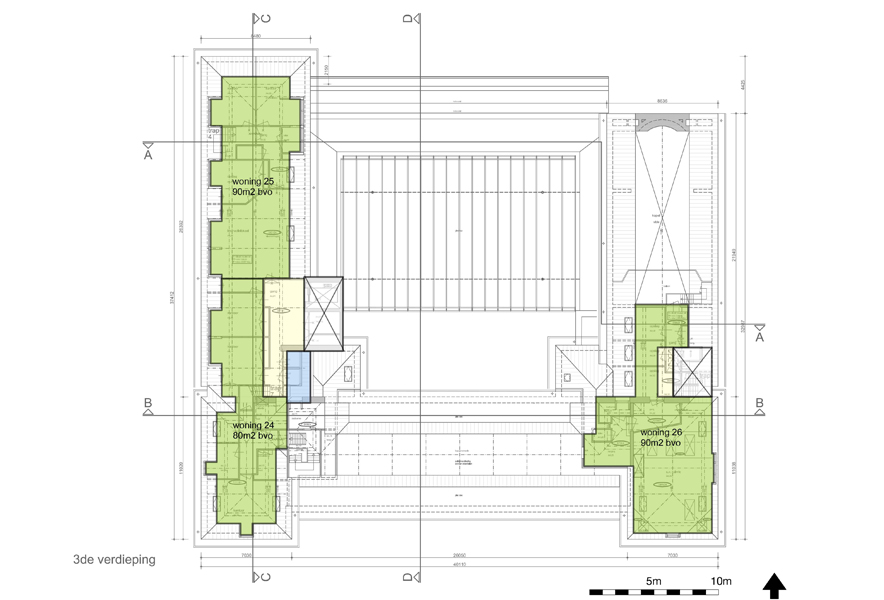
Voor de Woon-Werk-Zorg groep in Utrecht hebben wij een haalbaarheidsstudie gemaakt voor het transformeren van het monumentale voormalige klooster en parochiehuis in de Kanaalstraat in Utrecht. Het klooster is de laatste jaren in gebruik geweest als verzorgingstehuis maar voldoet niet meer aan de eisen van deze tijd.
Met behoud van de karakteristieke monumentale elementen hebben we het gebouw opnieuw ingedeeld met levensloopbestendige woningen, gemeenschappelijke ruimten en commerciële ruimten.



 
			
					


